Saabumas. Täpsusta tarneaeg
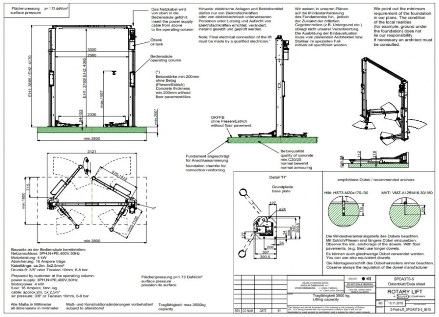
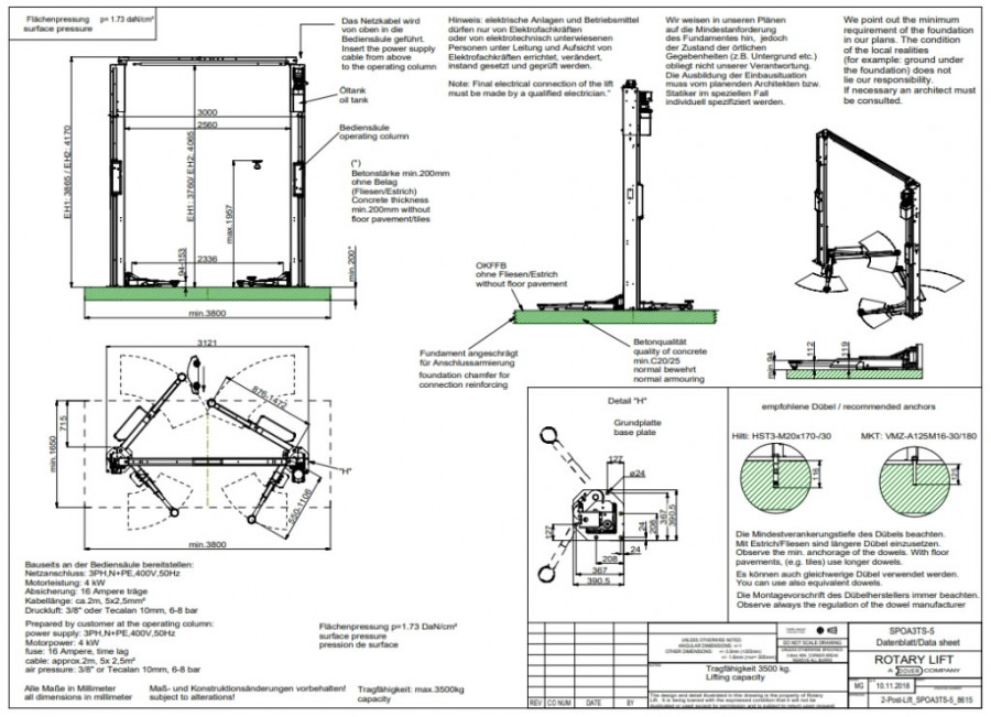
Asümmeetriliste käppadega elektro-hüdrauliline 2-post tõstuk.
Tehnilised näitajad:
tõstejõud 3,5T
tõstekõrgus 1957mm
tõsteaeg 30 sek
kogukõrgus/maksimaalne tõstekõrgus 4170/4065mm
madalaim tõstekõrgus 94-153mm
pika käpa reguleerimisvahemik876-1472mm
lühikese käpa reguleerimisvahemik550-1106mm
postidevaheline kaugus2560mm
maksimaalne postide vahelt läbisõitmise laius 2336mm
kogulaius3121mm
mootor4kW
toide400V/50Hz
kogukõrgus 4170mm
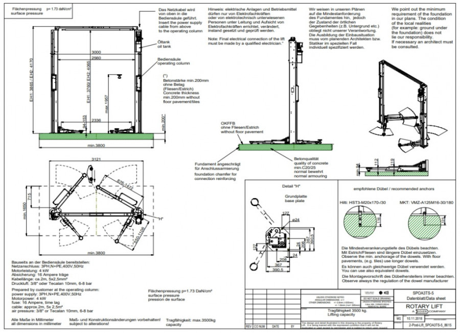
Tehnilised näitajad:
tõstejõud 3,5T
tõstekõrgus 1957mm
tõsteaeg 30 sek
kogukõrgus/maksimaalne tõstekõrgus 4170/4065mm
madalaim tõstekõrgus 94-153mm
pika käpa reguleerimisvahemik876-1472mm
lühikese käpa reguleerimisvahemik550-1106mm
postidevaheline kaugus2560mm
maksimaalne postide vahelt läbisõitmise laius 2336mm
kogulaius3121mm
mootor4kW
toide400V/50Hz
kogukõrgus 4170mm



